Accueil / Plans TCE

Plans TCE (Tous Corps d’État) : une vision globale pour un projet parfaitement maîtrisé

Coordonnez efficacement vos chantiers grâce à des plans techniques précis intégrant tous les corps de métier — pour un projet fluide, cohérent et conforme aux normes.

Une coordination technique complète pour un chantier sans imprévu

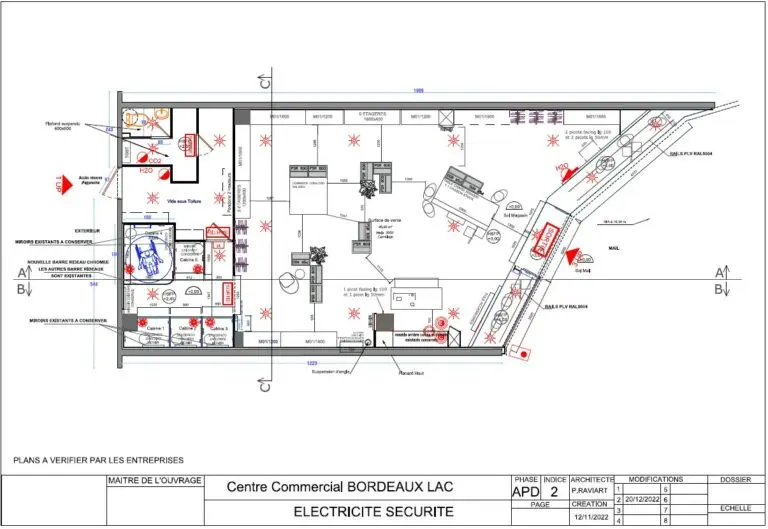
Un plan TCE regroupe toutes les informations techniques nécessaires à la bonne exécution d’un projet.

Il intègre les données des différents lots : électricité, plomberie, chauffage, revêtements, menuiseries, peinture, sols, etc.

Chaque artisan dispose ainsi d’une vision claire et précise de son périmètre d’intervention, assurant une coordination parfaite entre les métiers.

Des plans précis pour un chantier maîtrisé du début à la fin

Coordination optimale : les intervenants travaillent en parfaite synchronisation.
Anticipation des conflits techniques : les incohérences sont identifiées avant le chantier.
Optimisation des coûts et délais : moins d’erreurs, moins de reprises.
Sécurité accrue : conformité technique et réglementaire garantie.
Vision globale : tous les corps d’état réunis sur un seul plan pour une exécution fluide.

🎯 Résultat : un chantier plus fluide, plus rapide et sans mauvaise surprise.

Des espaces pensés pour tous

Je conçois des plans d’accessibilité PMR (Personnes à Mobilité Réduite) conformes aux normes en vigueur, garantissant une circulation fluide et sécurisée pour chaque usager.
Ces plans permettent d’adapter les accès, les sanitaires, les circulations et les zones d’accueil, tout en préservant l’esthétique de vos aménagements.

👉 Indispensable pour tout ERP, ce document assure la validation de votre dossier administratif et une parfaite intégration des exigences réglementaires dès la conception.

Anticipez les risques, assurez la sécurité

Les plans de sécurité incendie sont essentiels pour garantir la protection des personnes et des biens dans vos espaces professionnels.
Ils détaillent la localisation des équipements de sécurité, les voies d’évacuation, les zones à risque et les issues de secours.

Grâce à une conception rigoureuse, j’intègre ces contraintes sans compromettre le design de vos lieux.
Une étape clé pour obtenir un avis favorable des commissions de sécurité et ouvrir votre établissement en toute sérénité.

Harmonisez vos ambiances et valorisez vos volumes

Le plan peintures et papiers peints vous guide dans le choix des teintes, textures et finitions pour chaque espace.
Il permet une cohérence visuelle entre les différents éléments du projet, tout en respectant vos envies et les contraintes techniques.

Chaque mur, chaque détail est pensé pour créer une atmosphère harmonieuse et renforcer l’identité de votre marque ou de votre lieu de travail.

Structurez vos espaces par le sol

Le plan des sols définit la nature et la disposition des revêtements (carrelage, parquet, moquette, etc.) selon les zones d’usage et les contraintes techniques.
Il garantit une cohérence esthétique tout en respectant les normes de résistance, d’entretien et d’accessibilité.

Un outil essentiel pour assurer la qualité d’exécution et la durabilité de vos aménagements intérieurs.

Besoin de plans TCE complets et conformes ?

Gagnez en sérénité et en efficacité avec des plans TCE détaillés, conçus pour garantir la cohérence technique et la qualité d’exécution de votre chantier.