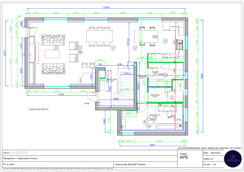
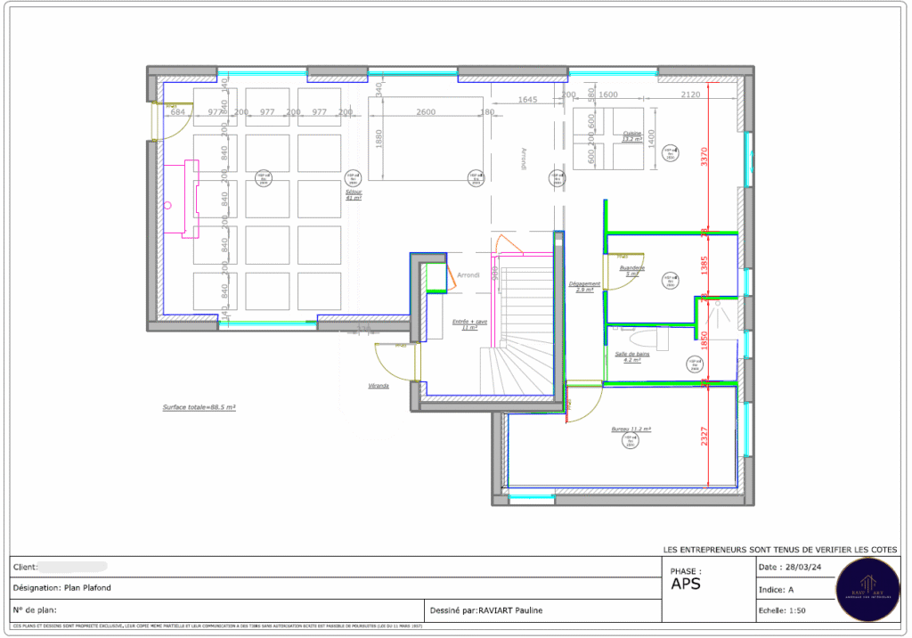
Accueil / Plan 2D

Visualisez votre projet avec des plans 2D précis et clairs.

Après le relevé des mesures, les plans 2D permettent de comprendre, organiser et optimiser chaque espace de votre maison ou de votre établissement, avant toute réalisation.

Visualiser, communiquer et optimiser vos espaces

Représentation claire de l’espace

Vue du dessus, identification des zones (cuisine, salon, chambres) et de leurs interactions.

Communication fluide

Support pour expliquer les choix aux clients et coordonner les artisans et professionnels (menuisiers, électriciens, plombiers…)

Optimisation de l’agencement

Tester la circulation, l’ergonomie et le placement des meubles avant toute réalisation.

Validation des dimensions et proportions

S’assurer que tous les éléments s’intègrent correctement et que les espaces sont équilibrés.

Anticipation des erreurs

Détecter les problèmes potentiels et économiser temps et argent.

✔️ Plan d'implantation générale avec cotation des cloisons

✔️ Plan électrique

✔️ Plan des plafonds

Prêt à concrétiser votre aménagement avec des plans fiables ?

Je vous accompagne pour créer des plans 2D précis et professionnels qui servent de référence pour vos travaux et permettent une coordination optimale avec tous les intervenants.