Accueil / Particuliers

Réinventez votre intérieur
& Vivez un espace qui vous ressemble.

Rénovation, aménagement ou réagencement. Je transforme vos envies en un lieu fonctionnel, esthétique et harmonieux, pensé pour votre quotidien.

Vous souhaitez rénover, aménager ou repenser votre intérieur, mais vous ne savez pas par où commencer ?

Je vous accompagne à chaque étape de votre projet : de la conception à la réalisation, en passant par le suivi de chantier, le choix des matériaux et la déclaration préalable.

Que vous souhaitiez une mission partielle ou un projet clé en main, je mets mon expertise à votre service pour créer un intérieur fonctionnel, esthétique et parfaitement adapté à votre style de vie.

photo_2025-11-11_12-46-30

Comment je procède

Écoute & conception

Projet sur mesure selon vos besoins.

Plans 2D/3D

Visualisation complète avant réalisation.

Suivi & coordination

Gestion intégrale du chantier, jusqu’à la livraison.

Projets récents

Avril 2025

Projet à St Pierre Canivet (14)

Quand tout matche dès la première présentation, on sait qu’on tient quelque chose de fort ! 💥
Mes clients, adorables et enthousiastes, ont tout de suite adhéré à ma proposition d’agencement — un vrai coup de cœur mutuel 🤍

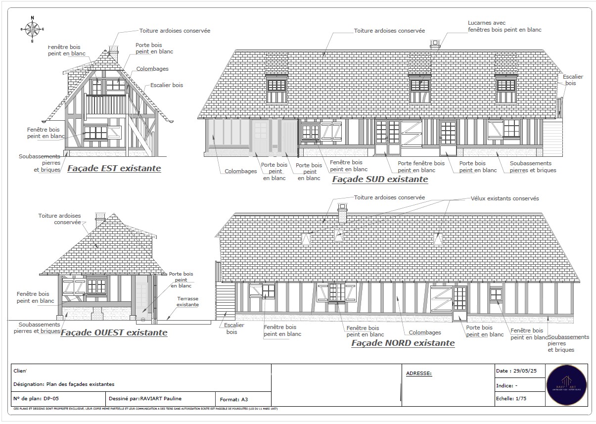
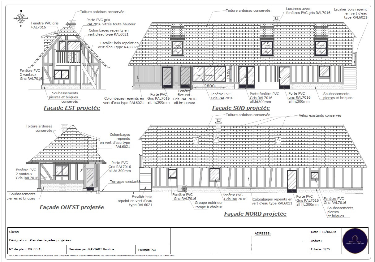
Juin 2025

Projet à Bonneville la Louvet (14)​

Rénovation & déclaration préalable

Mon client souhaitait moderniser l’ensemble de sa maison :


👉 Remplacement des menuiseries extérieures
👉 Agrandissement de certaines ouvertures pour plus de lumière
👉 Repeindre les colombages en vert d’eau pour un coup de frais tout en douceur 🌿


En parallèle, j’ai repensé l’agencement intérieur pour optimiser chaque mètre carré :


✏️ Réalisation de plans 3D pour proposer une circulation plus fluide et ergonomique
🛋️ Redistribution des espaces pour un quotidien plus fonctionnel
📄 Ce projet a nécessité le dépôt d’une déclaration préalable, que j’ai pris en charge de A à Z.
🔍 Une belle mission mêlant esthétique, technique et praticité !

Intérieur :

Parlons de votre projet

Vous souhaitez rénover ou aménager votre intérieur ?

Contactez-moi dès aujourd’hui pour un diagnostic et des conseils personnalisés.